Büro Wirtschaftsdirektor

Überblick

Das Gesamtkonzept zeigt eine sensible Haltung im Umgang mit dem Bestand: Der Genius Loci des alten Klostergebäudes wird respektiert und durch zeitgemäße, handwerklich anspruchsvolle Innenarchitektur behutsam ergänzt.

Info

2026 Fertigstellung

Benediktinerstift

St. Paul, Kärnten

Innenarchitektur | Tischlerei

Details
FC9B2F68-0AFC-42E4-847C-B2D2059A3329_1_105_c

Die Komposition aus edlem Nussholz, tiefschwarzen Akzenten und maßgeschneiderten Einbauregalen schafft eine klare, ruhige und zugleich einladende Arbeitslandschaft. Vielfältige Ablageflächen und unterschiedliche Sitzmöglichkeiten – vom formalen Besprechungstisch bis zur entspannten Lounge – ermöglichen flexible Nutzung und angenehme Atmosphäre.

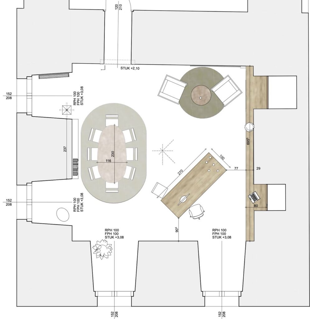
Die Grundrisskomposition verbindet zwei ovale Zentren – einen großen Konferenzbereich und eine Lounge-Zone – über eine diagonal angeordnete, langgestreckte Arbeitsfläche. Diese klare, aber dynamische Anordnung lässt die historischen Raumproportionen und Bogenformen weiterhin wirken und schafft zugleich flexible Nutzungsmöglichkeiten zwischen formellem und informellem Arbeiten.

Starte ein Projekt?

IMPRESSUM

DATENSCHUTZ

office@framework.at

0699 18154965

© 2026 Framework | Website by Vishiba.com